close
Find a Property
Back to property listings

£2,250 per month
Available from 08/08/2027
Riverdene, Edgware, HA8 9TD - let Fees Apply
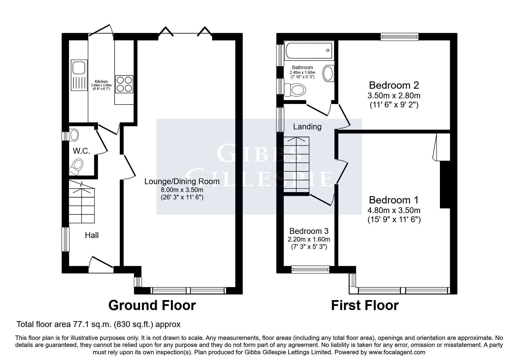
Key Features & Description
  • Semi detached
  • Three bedrooms
  • Kitchen with appliances
  • Open plan lounge / dining room
  • Modern bathroom suite
  • Unfurnished
  • Street parking

This well presented three bedroom, semi-detached family residence boasts light-filled interiors throughout and is conveniently located in a quiet residential road. The accommodation comprises of an entrance hallway with doors leading to, a spacious through lounge / dining room with patio doors accessing the rear garden and a separate kitchen with appliances. The ground floor is complete with a downstairs w/c. To the first floor there are two double bedrooms, a further single bedroom and a modern family bathroom suite. The property also benefits from private front and rear gardens, shed, gardener included seasonal, CCTV and street parking. The property is located on Riverdene, an easy reach to local schools and located within a mile and a half of both Mill Hill Thameslink & Edgware's Northern Line Stations. Further Details:- Local Authority: Barnet Council Council Tax: £2,487.85 (Band...

read moreless
How much is your property worth?

Selling or Letting? Get a free and up-to-date valuation from one of our experts.

Register for Property Alerts

Buying or Renting? Don't miss out! Be the first through the door of newly listed homes.

Map & Explore Nearby
£2,250 per month
Available from 08/08/2027
Property Valuation

We enjoy intimate and unparalleled knowledge of property values in your area.