close
Find a Property
Back to property listings

£2,400 per month
Available from 01/05/2026
Watford Road, Croxley Green, Rickmansworth, Hertfordshire, WD3 3DX - let Fees Apply
Key Features & Description
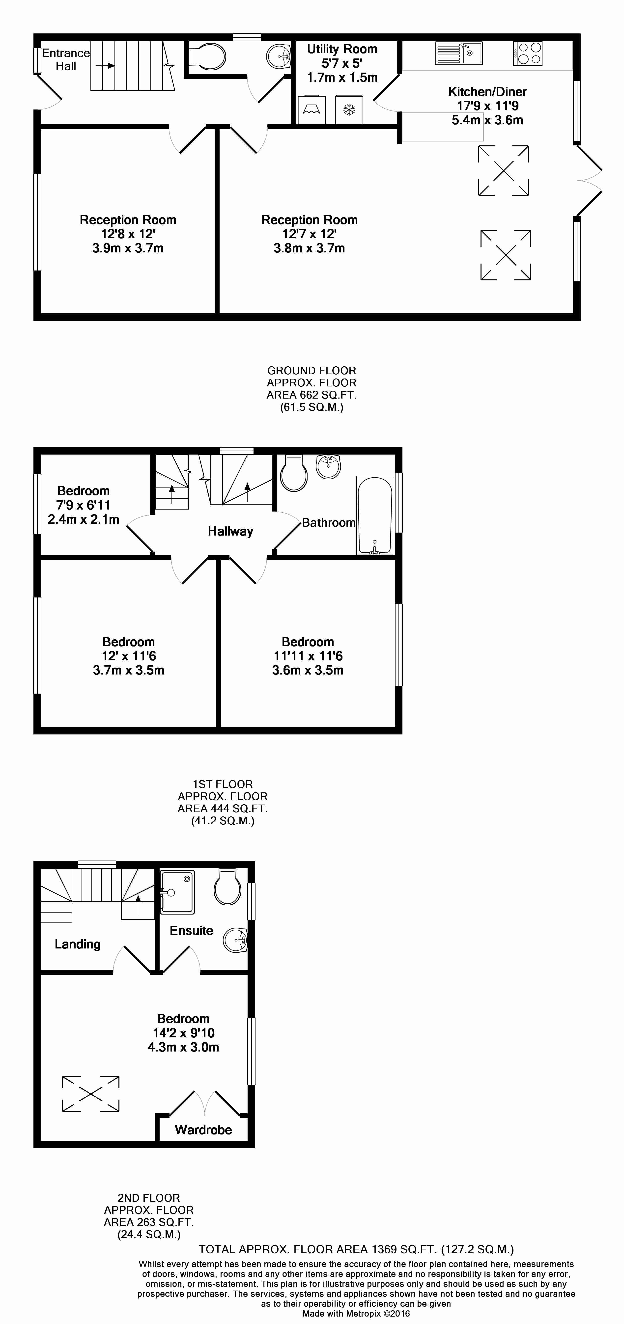
  • Four bedroom house
  • Master bedroom with en-suite
  • Modern kitchen with fitted appliances
  • Spacious reception
  • Seperate utility room
  • Off-street parking
  • Driveway parking

Gibbs Gillespie are pleased to offer this contemporary four bedroom semi detached house which offers space and style, set over three floors and within minutes walk of Croxley Green Metropolitan Line Station. Accommodation comprises hallway with wood floor, understairs storage and downstairs wc, sun drenched lounge with bay window and feature fireplace, dining room with open-plan fitted kitchen. The ground floor also benefits from a utility room and patio doors onto a well maintained garden. On the first floor, there are two double bedrooms, both with fitted wardrobes, a good size single bedroom and fully tiled family bathroom. The second floor offers the master suite with fitted wardrobes and fully tiled ensuite shower room. The property is located within walking distance of Croxley Green Station which provides convenient commuter links to Central London, while the neighbouring M25...

read moreless
How much is your property worth?

Selling or Letting? Get a free and up-to-date valuation from one of our experts.

Register for Property Alerts

Buying or Renting? Don't miss out! Be the first through the door of newly listed homes.

Map & Explore Nearby
£2,400 per month
Available from 01/05/2026
Property Valuation

We enjoy intimate and unparalleled knowledge of property values in your area.