close
Find a Property
Back to property listings

4 Bedroom House for sale

Asking price £770,000
Moor Lane, Staines-upon-Thames, Surrey, TW18
Key Features & Description
  • Mid Terrace
  • Flooring throughout
  • Two double bedrooms with fitted wardrobes
  • Energy efficient kitchen appliances
  • Composite stone kitchen worktops
  • Allocated parking
  • Staines railway station within walking distance
  • River Thames just 7 minutes by foot

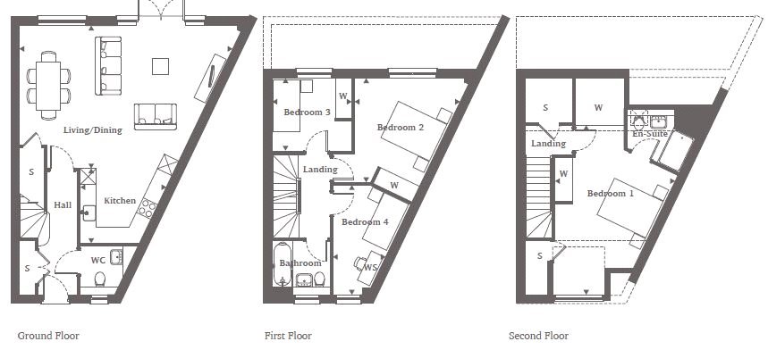
Built by award winning developer Shanly Homes Plot 32 Moorfield Mews is a beautiful four bedroom mid terrace family home. With 1524 sq. Ft of living space this newly built home provides exceptional spaces for busy family life to be enjoyed in harmony. On the ground floor lies the open plan kitchen/dining/family area. Ideal for modern family life easily catch up on daily conversations and enjoy precious family time. This space creates a lively atmosphere where entertaining can be done with ease. Built by award winning developer Shanly Homes the home comes well equipped with newly installed appliances so you'll have the peace of mind knowing your home is energy efficient with environmental features to help reduce your carbon footprint. On the first floor lies three well-proportioned bedrooms and the contemporary family bathroom. The top floor is dedicated to bedroom one with plenty of...

read moreless
How much is your property worth?

Selling or Letting? Get a free and up-to-date valuation from one of our experts.

Register for Property Alerts

Buying or Renting? Don't miss out! Be the first through the door of newly listed homes.

Map & Explore Nearby

Calculate your monthly mortgage payments.

Calculations by

Click here for FREE no obligation Mortgage Advice

Calculate how much stamp duty you will have to pay based on the purchase price of the property.

Use our buy to let return on investment calculator to quickly assess suitable investment opportunities.

Property Value £0
Monthly Rental £0

Your estimated rental yield would be:


Pinner Area Guide

Located within a residential area on the outer fringes of north-west London, Pinner has retained much of its ancient charm, particularly in the original village centre, despite its proximity to the capital.

With its church and delightful mock-Tudor buildings, Pinner is a picturesque place for a stroll and there are some lovely places to eat along the High Street and some charming gift shops too.

Considered the more affluent side of the London Borough of Harrow, Pinner has a strong sense of community, with four key events each year. Celebrations for St George’s Day in April, Pinner Fair in May, the Pinner Village Show in Pinner Memorial Park on the second Saturday in September and Pinner Pantomime Evening, which takes place on the last Thursday of each November.

find out more
Property Market Intelligence

Providing data-driven insight into the local residential property market.

Areas Covered by Gibbs Gillespie Land & New Homes

Click here to view all the data and analysis on how the local property market is performing today.

Data refers to prices and sales numbers achieved in the last 12 months (all residential property types).
House price change compares average prices achieved in the last 12 months with the previous 12 month period.
Sources: Dataloft, Land Registry, Dataloft Rental Market Analytics

Asking price £770,000
Property Valuation

We enjoy intimate and unparalleled knowledge of property values in your area.