close
Find a Property
Back to property listings

8 Bedroom House for sale

Offers in Excess of £2,000,000
Nancy Downs, Watford, Hertfordshire, WD19
Key Features & Description
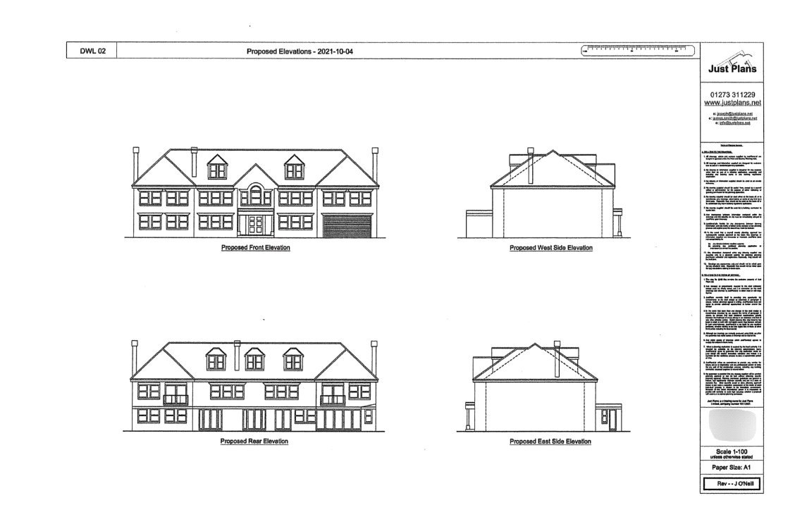
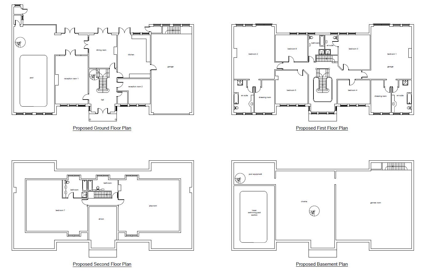
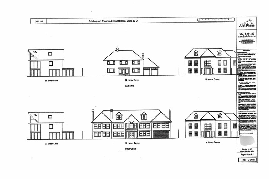
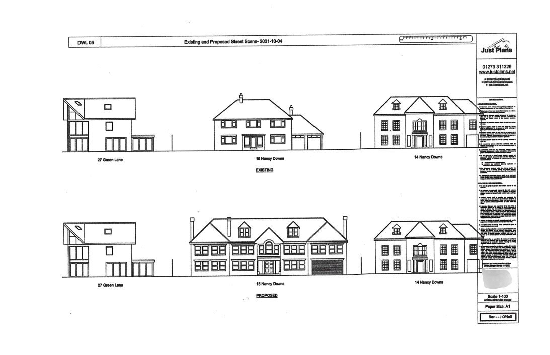
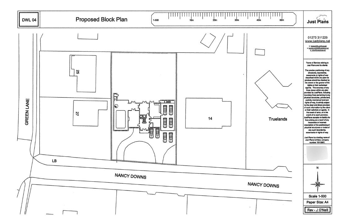
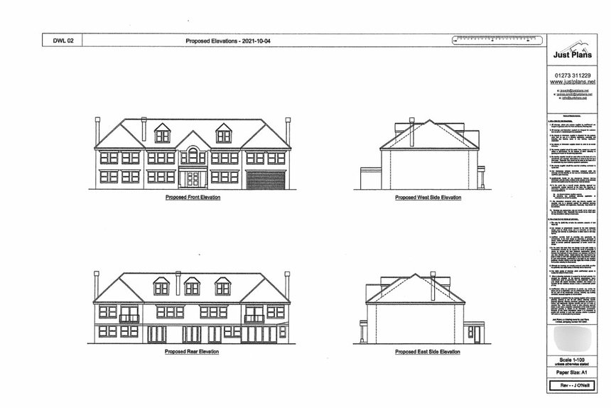
  • Planning Permission to Build up to 12,000 Sq Ft
  • One of Watford’s most Prestigious Private Roads
  • Can be Refurbished or Developed
  • 1/3 acre plot
  • Gated Carriage Driveway
  • Existing property builit in 1965

A Rare Opportunity in One of Oxhey and Watford’s Most Coveted Addresses Nestled on one of the most desirable private roads in the Oxhey and Watford area, this exclusive enclave comprises just 17 individual residences, each set on generous plots. This particular property offers a unique opportunity to acquire a substantial plot with full planning permission to create a bespoke luxury family home extending to approximately 12,000 sq ft. The property currently benefits from off-street parking and a garage, providing convenience and security for your vehicles. The large windows allow natural light to flood in, enhancing the bright and airy atmosphere of the home. With ample living space, including a modern kitchen, cosy living room, and elegant bedrooms, this property offers plenty of scope for a re-design or a light refurbishment if desired. Prime Location with Excellent Connectivity...

read moreless
How much is your property worth?

Selling or Letting? Get a free and up-to-date valuation from one of our experts.

Register for Property Alerts

Buying or Renting? Don't miss out! Be the first through the door of newly listed homes.

Map & Explore Nearby

Calculate your monthly mortgage payments.

Calculations by

Click here for FREE no obligation Mortgage Advice

Calculate how much stamp duty you will have to pay based on the purchase price of the property.

Use our buy to let return on investment calculator to quickly assess suitable investment opportunities.

Property Value £0
Monthly Rental £0

Your estimated rental yield would be:


Northwood Area Guide

Northwood is a suburban town on the border of Greater London and Hertfordshire. It is known for having an excellent balance between proximity and ease of access to Central London and leafy, quiet roads and green space characteristic of more rural areas. There are three Underground stations served by the Metropolitan Line, making commuting into Central London easy.

There are also great schools and large, detached homes here, making this a good place for families, too. Northwood also has a high percentage of residents who are older people, showing that it's an area that appeals to all ages.

find out more
Property Market Intelligence

Providing data-driven insight into the local residential property market.

Areas Covered by Gibbs Gillespie Northwood

Click here to view all the data and analysis on how the local property market is performing today.

Data refers to prices and sales numbers achieved in the last 12 months (all residential property types).
House price change compares average prices achieved in the last 12 months with the previous 12 month period.
Sources: Dataloft, Land Registry, Dataloft Rental Market Analytics

Offers in Excess of £2,000,000
Property Valuation

We enjoy intimate and unparalleled knowledge of property values in your area.